ORDINANCE CALENDAR NO. 2828 ORDINANCE COUNCIL SERIES NO.
INTRODUCED BY: MR. STEFANCIK SECONDED BY: MR. THOMPSON
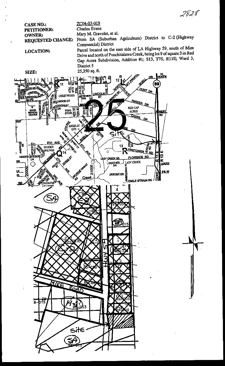
An Ordinance amending the official zoning map of St. Tammany Parish,
La, to reclassify a certain parcel located on the east side of LA Highway
59, south of Mire Drive and north of Ponchitalawa Creek, being lot 9 of
square 3 in Red Gap Acres Subdivision, Addition #1 and which property
comprises a total of 25,350 sq. ft. of land more or less, from its present SA
(Suburban Agriculture) District to a C-2 (Highway Commercial) District,
Ward 3, District 5. (ZC04-03-019)
Whereas, the St. Tammany Parish Council has held its public hearing in accordance with law:
Whereas, the St. Tammany Parish Council has found it necessary for the purpose of protecting
the public health, safety and general welfare, to designate the above described property as C-2 (Highway
Commercial) District.
THE PARISH OF ST. TAMMANY HEREBY ORDAINS, in regular session convened that:
SECTION II: The official zoning map of the Parish of St. Tammany shall be and is hereby
amended to incorporate the zoning reclassification specified in Section I hereof.
REPEAL: All Ordinances or parts of Ordinances in conflict herewith are hereby repealed.
EFFECTIVE DATE: This Ordinance shall become effective fifteen (15) days after adoption.
MOVED FOR ADOPTION BY: , SECONDED BY:
WHEREUPON THIS ORDINANCE WAS SUBMITTED TO A VOTE AND RESULTED IN
THE FOLLOWING:
YEAS:
NAYS:
ABSTAIN:
ABSENT:
THIS ORDINANCE WAS DECLARED DULY ADOPTED AT A REGULAR MEETING OF
THE PARISH COUNCIL ON THE DAY OF , 2004; AND BECOMES
ORDINANCE COUNCIL SERIES NO. 04- .
Published Introduction: , 2004
Published Adoption: , 2004
Delivered to Parish President: , 2004 at
Returned to Council Clerk: , 2004 at
COUNCIL SPONSOR BRISTER/PRESIDENT PROVIDED BY: PLANNING
ON THE 6TH DAY OF MAY , 2004
Whereas, the Zoning Commission of the Parish of St. Tammany after hearing in accordance with
law, Case No. ZC04-03-019, has recommended to the Council of the Parish of St. Tammany, Louisiana,
that the zoning classification of the above referenced area be changed from its present SA (Suburban
Agriculture) District to a C-2 (Highway Commercial) District (see Exhibit "A") for complete boundaries.
SECTION I: The zoning classification of the above described property is hereby changed from
its present SA (Suburban Agriculture) District to a C-2 (Highway Commercial) District.
SEVERABILITY: If any provision of this Ordinance shall be held to be invalid, such invalidity
shall not affect other provisions herein which can be given effect without the invalid provision and to
this end the provisions of this Ordinance are hereby declared to be severable.
ORDINANCE COUNCIL SERIES NO. _________
PAGE 2 OF 2
_______________________________________
PATRICIA BRISTER, COUNCIL CHAIRMAN
ATTEST:
DIANE HUESCHEN, COUNCIL CLERK
KEVIN DAVIS, PARISH PRESIDENT


